上海产业园区出租  >  浦东新区产业园区出租  >  自贸区-临港新片区产业园区出租  >  临港智造园十二期

临港智造园十二期

临港智造园十二期

2.5~2.5元/m²/天


6个 -
在租房源 可租面积

地址:中国(上海)自由贸易试验区临港新片区平霄路358号

距离地铁:

招商电话 400-876-1589

临港智造园十二期招商载体介绍

  • 房源详情
  • 100m²以下
  • 100-200m²
  • 200-300m²
  • 300-500m²
  • 500-1000m²
  • 1000m²以上
照片
面积
单价
楼层
装修
2.5元/m²/天
低区 毛坯 查看详情
2.5元/m²/天
低区 毛坯 查看详情
2.5元/m²/天
中区 毛坯 查看详情
2.5元/m²/天
低区 毛坯 查看详情
2.5元/m²/天
高区 毛坯 查看详情
2.5元/m²/天
低区 毛坯 查看详情

临港智造园十二期介绍

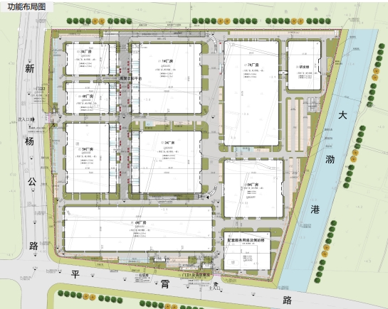
项目简介:项目聚焦车载感知系统、域控制器、智能底盘、座舱电子、车身电子、电机、电控、空调、转向系统等短板,重点招引外资、上市公司、独角兽、头部企业,注重制造和研发“两手抓”。 紧抓“CTC智能底盘”、“车规级芯片”、“自动驾驶”等风口,依托宁德时代科技,系统布局电池、电驱、电控、充电、压铸等电芯底盘一体化产业链。

项目地址:中国(上海)自由贸易试验区临港新片区平霄路358号。

项目布局:项目共10栋建筑,可进行招商出租的为5栋定制厂房、4栋标准智造厂房。

技术指标:预留吊车荷载10T、1-3吨货梯、首层3吨、楼上1-2吨楼面荷载,支持智造空间“工业上楼”。

产业需求:项目紧紧围绕龙头、短边、风口企业招商。紧抓特斯拉扩能、宁德时代释放产能,继续深挖优质供应商集聚。

服务理念:企业注册、企业服务、产业政策、人才政策、住房配套等一站式服务。

占地面积:14.87万平方米

技术指标:

总建筑面积20.02万平方米

大型厂房1.91~2.55万平方米;定制厂房1.08~4.61万平方米;标准厂房8543平方米

首层层高10.8~15米,一层以上层高5.6~9.8米



临港智造园十二期参数

层高

首层层高10.8~15米,一层以上层高5.6~9.8米

层数

电梯

得房率

物业公司

开发商

临港智造园十二期附近交通及配套

临港智造园十二期

上海市青浦区崧泽大道333号(地铁2号线徐泾东站5、6号口即到)

临港智造园十二期办公室出租及租金

  • 全部房源
  • 100m²以下
  • 100-200m²
  • 200-300m²
  • 300-500m²
  • 500-1000m²
  • 1000m²以上

临港智造园十二期图片

临港智造园十二期图片

临港智造园十二期附近交通及配套

临港智造园十二期

上海市青浦区崧泽大道333号(地铁2号线徐泾东站5、6号口即到)

临港智造园十二期园区介绍

项目简介:项目聚焦车载感知系统、域控制器、智能底盘、座舱电子、车身电子、电机、电控、空调、转向系统等短板,重点招引外资、上市公司、独角兽、头部企业,注重制造和研发“两手抓”。 紧抓“CTC智能底盘”、“车规级芯片”、“自动驾驶”等风口,依托宁德时代科技,系统布局电池、电驱、电控、充电、压铸等电芯底盘一体化产业链。

项目地址:中国(上海)自由贸易试验区临港新片区平霄路358号。

项目布局:项目共10栋建筑,可进行招商出租的为5栋定制厂房、4栋标准智造厂房。

技术指标:预留吊车荷载10T、1-3吨货梯、首层3吨、楼上1-2吨楼面荷载,支持智造空间“工业上楼”。

产业需求:项目紧紧围绕龙头、短边、风口企业招商。紧抓特斯拉扩能、宁德时代释放产能,继续深挖优质供应商集聚。

服务理念:企业注册、企业服务、产业政策、人才政策、住房配套等一站式服务。

占地面积:14.87万平方米

技术指标:

总建筑面积20.02万平方米

大型厂房1.91~2.55万平方米;定制厂房1.08~4.61万平方米;标准厂房8543平方米

首层层高10.8~15米,一层以上层高5.6~9.8米



临港智造园十二期园区参数

层高

首层层高10.8~15米,一层以上层高5.6~9.8米

层数

电梯

得房率

物业公司

开发商

临港智造园十二期园区点评

评论:
免费
咨询

免费咨询

400-876-1589

8万+套精品房源

100+人专业顾问

早9:00-晚21:00

关注“梧桐联行”

返回顶部