上海产业园区出租  >  浦东新区产业园区出租  >  自贸区-临港新片区产业园区出租  >  汽车电子产业园

汽车电子产业园

汽车电子产业园

2.5~2.5元/m²/天


5个 -
在租房源 可租面积

地址:两港大道北侧、鸿音路西侧

距离地铁:

招商电话 400-876-1589

汽车电子产业园招商载体介绍

  • 房源详情
  • 100m²以下
  • 100-200m²
  • 200-300m²
  • 300-500m²
  • 500-1000m²
  • 1000m²以上
照片
面积
单价
楼层
装修
2.5元/m²/天
低区 毛坯 查看详情
2.5元/m²/天
低区 毛坯 查看详情
2.5元/m²/天
高区 毛坯 查看详情
2.5元/m²/天
低区 毛坯 查看详情
2.5元/m²/天
中区 毛坯 查看详情

汽车电子产业园介绍

项目简介:临港产业区公司面向新能源智能网联汽车产业生态,重点关注汽车电子细分领域,力争打造具有创新引领功能的研发中心、技术中心、设计中心、制造中心和创新服务为一体的汽车电子特色产业基地,助力上海市汽车电子产业“拔节向上”。

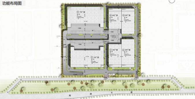
项目位置:两港大道北侧、鸿音路西侧。

区位优势:地处于上海汽车和特斯拉两大新能源汽车主机厂中间位置。

项目布局:园区规划有6栋双层厂房,布局科学合理。采用“双首层”概念,解决重型配套企业“上楼”问题。

占地面积:7.2万平方米

建筑面积:总建筑面积9万平方米

厂房1栋约2.4万平方米,1栋约2.2万平方米,4栋约1万平方米

汽车电子产业园参数

层高

层数

电梯

得房率

物业公司

开发商

汽车电子产业园附近交通及配套

汽车电子产业园

上海市青浦区崧泽大道333号(地铁2号线徐泾东站5、6号口即到)

汽车电子产业园办公室出租及租金

  • 全部房源
  • 100m²以下
  • 100-200m²
  • 200-300m²
  • 300-500m²
  • 500-1000m²
  • 1000m²以上

汽车电子产业园图片

汽车电子产业园图片

汽车电子产业园图片

汽车电子产业园图片

汽车电子产业园附近交通及配套

汽车电子产业园

上海市青浦区崧泽大道333号(地铁2号线徐泾东站5、6号口即到)

汽车电子产业园园区介绍

项目简介:临港产业区公司面向新能源智能网联汽车产业生态,重点关注汽车电子细分领域,力争打造具有创新引领功能的研发中心、技术中心、设计中心、制造中心和创新服务为一体的汽车电子特色产业基地,助力上海市汽车电子产业“拔节向上”。

项目位置:两港大道北侧、鸿音路西侧。

区位优势:地处于上海汽车和特斯拉两大新能源汽车主机厂中间位置。

项目布局:园区规划有6栋双层厂房,布局科学合理。采用“双首层”概念,解决重型配套企业“上楼”问题。

占地面积:7.2万平方米

建筑面积:总建筑面积9万平方米

厂房1栋约2.4万平方米,1栋约2.2万平方米,4栋约1万平方米

汽车电子产业园园区参数

层高

层数

电梯

得房率

物业公司

开发商

汽车电子产业园园区点评

评论:
免费
咨询

免费咨询

400-876-1589

8万+套精品房源

100+人专业顾问

早9:00-晚21:00

关注“梧桐联行”

返回顶部